Local Government
Supervisors OK Applicant Withdrawal of Slate Run Farm LLC 448-acre Ag to Commercial/Industrial Rezoning – For No More Than a Year
Perhaps the biggest takeaway from the Tuesday, November 28th Warren County Board of Supervisors Public Hearing meeting was what was not heard. That was the Slate Run Farm LLC rezoning request on 448.2-plus acres off of state Route 340 North/Winchester Road to be moved from Agricultural to Industrial and Commercial zoning. The properties are located off Winchester Road in the North River District, just north of the Blue Ridge Shadows golf course and subdivision.
At the meeting’s outset, South River District Supervisor Cheryl Cullers took a shot at the initial motion to amend the agenda to table the Slate Run Farm LLC rezoning request. That tabling was made at the request of the applicant, and likely headed off a flurry of North River District residents opposing comments. However, there was some confusion over the wording of the motion, leading to discussion with County Administrator Ed Daley and a re-making of the motion by North River District Supervisor Delores Oates stating that the tabling would be “until no later than November 2024.” That would seem to indicate the board does not want the future use of nearly 500 acres of property in the area held up indefinitely. With Shenandoah District Supervisor Walt Mabe’s second, Oates motion to table for not more than a year was unanimously approved.

Perhaps the biggest vote the board took Tuesday evening, was approving removal of one scheduled Public Hearing – the Slate Run Farm LLC rezoning request on 448.2-plus acres from Agricultural to Commercial and Industrial. Royal Examiner Photos Roger Bianchini
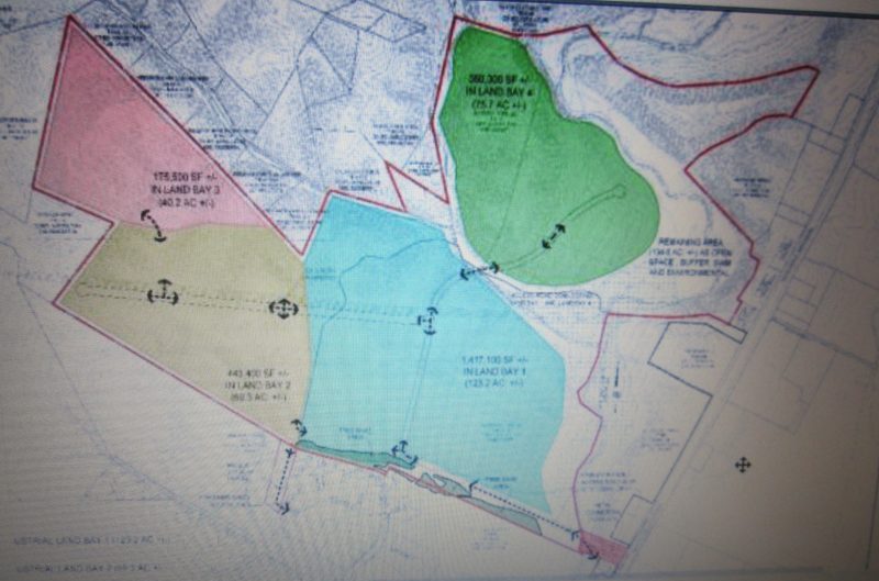
The Slate Run Farm LLC rezoning has attracted some attention from area residents, particularly in the Blue Ridge Shadows development. As the Agenda packet staff summary noted: “The applicant is proposing four land bays which will be phased in for industrial development with a total of 2,500,000 square feet. The commercial property will have 25,000 square feet for commercial land-uses. This application does not have a specific land-use identified but the applicant plans to market it for warehousing due to its proximity to the Virginia Inland Port. Warehousing and distribution facilities are land-uses allowed by-right in the Industrial zoning district and are compatible with the current Warren County Zoning Ordinance.”
With the property’s proximity to a large Commercial/Industrial area, including the Inland Port, as well as close access to a four-lane divided state road that intersects southbound with Interstate 66 east/west, which in turn intersects with Interstate 81 north/south, the Agenda packet staff summary also noted: “The Future Land Use Map in the Comprehensive Plan identifies this area to be used for Industrial land uses and zoned Industrial (I). The request currently is compatible with the Future Land Use map of the Comprehensive (Plan) since this property is shown to be Industrial (I).”

Graphics from agenda packet on the removed rezoning request public hearing. We’ll have to wait a while, but not more than a year, to hear the arguments for and against the proposed rezoning. The agenda packet included a petition against the rezoning containing 54 signatures of Blue Ridge Shadows homeowners who live just south of the 448-acre Slate Run Farm LLC property proposed for rezoning from Agricultural to largely Industrial zoning development.

So, while approval of the requested rezoning might seem a logical conclusion to the request due to existing future land use Comp Plan guidelines and transportation infrastructure, it will have to wait, as will the arguments against the rezoning by impacted north-side residents. So, the “Future is NOT quite NOW” for 448.2-plus acres of north-side property earmarked for “future” industrial development. One might guess that the applicant will need to submit a more detailed proposal on planned development to stem the tide of public opposition, opposition that might capture some supervisors attention. Included in such detail might be whether the currently proposed 25,000 square feet (cited at 4.47 acres of the 448.2+ involved acres, or 2,500,000 total s.f.) of Commercial land use will be enough and of the sort that might provide a benefit to area residents that might neutralize some of the opposition to the Industrial aspect of the proposal. But that is a discussion that is put off for now, though for not more than a year.
Other business
With the Slate Run Farm LLC rezoning removed from the agenda, that left the following public hearings for comment and action by the county’s supervisors. For the most part there was little to no public feedback other than by applicants called to the podium by board Chairman Vicky Cook, leading to a string of eight consecutive unanimous approvals, until the ninth and final public hearing on a Vesta Property Management Short-term Tourist Rental Conditional Use Permit application:
- CUP2023-09-06 – Vesta Property Management (John C. & Johanna R. Villalobos) A request for a conditional use permit for a Short-term Tourist Rental – staff presentation by Zoning Administrator Chase Lenz – The property is located at 207 Gary Lane and identified on tax map 15D, section 2, block 5, lot 202. The property is zoned Residential-One (R-1) and located in the Shenandoah Farms – River View section and in the Shenandoah Magisterial District.

County Zoning Administrator Chase Lenz handled the bulk of the staff summaries of public hearing topics.
It was noted that unlike the previously considered matters, the County Planning Commission had forwarded this request with a unanimous recommendation of denial due to a requested waiver of the county code 100-foot setback requirement for Short-term Tourist Rentals. Also unlike a previous considered request requiring a 100-foot setback waiver, the impacted neighbor, Anna Habley, whose property lies 62-feet from the proposed Short-term Tourist Rental, opposed the waiver. See this public hearing at the linked County video mark of 59:03, with Ms. Habley’s comments at the 1:01:45 video mark. And through some wording confusion, on Supervisor Mabe’s motion to deny, second by Butler, this CUP application was unanimously denied.
Unanimous Approvals
Prior to that denial, as noted above, the string of unanimous approvals included:
- – Ordinance to Amend Chapter 30 of the Warren County Code and to add and ordain Section 30-10 – staff report Ashley Woodall: motion to approve Oates, second Cullers, unanimous approval.
- R2023-09-01 – Comprehensive Plan Amendment – Future Land Use Map – Jennifer Wynn (Riverside Parcel 1 LLC) – staff summary Chase Lenz – A request to amend the Warren County Comprehensive Plan and Future Land Use Map for a rezoning from Agricultural (A) to Commercial (C). The property is identified on tax map number as TM# 28, parcel 124A. Motion by Mabe, second Cullers, unanimous approval.
- R2023-09-01 – Rezoning – Jennifer Wynn (Riverside Parcel 1 LLC) – staff summary Chase Lenz – A rezoning application to amend the Warren County Zoning Map to rezone a 1.66-acre parcel from Agricultural (A) to Commercial (C). The property is located at 10353 Stonewall Jackson Highway and identified on tax map 28 as lot 124A. The property is located in the South River Magisterial District and the proposed by-right land use is for a (tourist) hotel/motel. Despite some concern on assuring safe access and egress, on motion by Cullers, second Butler, unanimous approval.
- CUP2023-09-01 – Douglas Salzman conditional use permit request for private use camping – staff report Chase Lenz – A request for a conditional use permit for a Private Use Camping (Non-Commercial). The property is located at (0) Avalon Drive and identified on tax map 20C, section 1, block 4, lot 42. The property is zoned Residential-One (R-1) and located in Shenandoah River Estates subdivision and in the Shenandoah Magisterial District. Motion by Oates, second Mabe, unanimous approval.
- CUP2023-09-02 – Fox & Slate Investments, LLC – staff summary Chase Lenz – A request for a conditional use permit for a Short-term Tourist Rental. Staff report Chase Lenz. The property is located at 1312 Old Oak Lane and identified on tax map 17A, section 4, lot 11A. The property is zoned Residential-One (R-1) and located Shenandoah Farms – Chain Spring section of Subdivision and in the Shenandoah Magisterial District. Motion by Mabe, second Cullers, unanimous approval.
- CUP2023-09-03 – Adam Graziano for a short-term tourist rental – staff summary staff summary Chase Lenz – A request for a conditional use permit for a Short-term Tourist Rental. The property is located at 40 Sunset Village Road and identified on tax map 27B, section 2, lot 106A1. The property is zoned Residential-One (R-1) and located in the Junewood Estates subdivision and the Fork Magisterial District. Motion by Butler, second Mabe, unanimous approval.
- CUP2023-09-04 – Richard & Jennifer Jamieson for a guesthouse – staff summary Matt Wendling – A request for a conditional use permit for a Guesthouse. The property is located at (0) Knock Lane and identified on tax map 10P, section 4, as lot 18. The property is zoned Agricultural (A) and located in the Gafia Estates at Lake John subdivision and in the North River Magisterial District. Motion Oates, second Cullers, unanimous approval.
- CUP2023-09-05 – Vesta Property Management (Sergio L. Herrera) – staff summary Chase Lenz – A request for a conditional use permit for a Short-term Tourist Rental. staff summary Chase Lenz. The property is located at 141 Farms River Road and identified on tax map 15B, section 1, block 1, lot 59. The property is zoned Residential-One (R-1) and located in the Shenandoah Farms – River View section and in the Shenandoah Magisterial District. Motion by Mabe, second by Cullers, unanimous approval.
- Proposed Lease Agreement – Warren County Community Health Coalition – staff summary Tiffany Walker – Walker informed the board staff was asking to postpone the public hearing and action on the item as the lease was being revised and updated with the process not yet completed. On a motion by Mabe, second by Cullers, the board unanimously agreed to table the matter to a future date.
- Warren County Parks and Recreation Lease Agreements – Front Royal Little League use of Champs 53 Field Complex – staff report Recreation Manager Tiffany Walker, Office Manager Dana Winner – After some board discussion, beginning at 1:06:45 video mark, about reassessing actual costs for upkeep and property management related to various youth sports, including Midget Football’s use of County-owned property for their games and practices, so as to make them as affordable as possible, on a motion by Cullers, second by Mabe, the board unanimously approved the proposed lease agreement dating back to October 12, 2023, with the Front Royal Little League.
It’s business taken care of for the evening, the meeting was then adjourned at 7:17 p.m.
Click here to watch the Warren County Board of Supervisors Meeting of November 28, 2023.
